应用技术特点
■紧急反向装置;
■内置卸荷阀保护车子不超载使用,提高车子的可靠性;
■紧急断电开关;
■龟形慢速行驶开关;
■无级变速控制;
■可折叠的加厚踏板和护栏,增强操作者的舒适度和安全性。
■侧置油缸确保 宽视野操作和车子结构的平稳性;
■弹簧调节结构的平衡轮耐磨损,稳定性好;
■坚固的进口门]架。
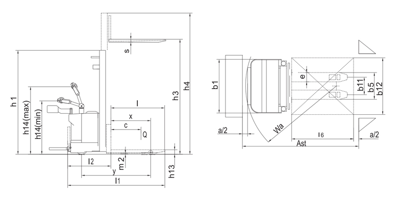
| 额定载荷 | Q(kg) | 1000 | 1500 | 2000 |
| 载荷中心距 | C(mm) | 500 | 500 | 500 |
| 前悬距 | X(mm) | 960 | 960 | 960 |
| 轮距 | Y(mm) | 1555 | 1555 | 1555 |
| 自重(带电瓶) | kg | 700-1100 | 700-1100 | 700-1100 |
| 轮子 | 聚胺酯轮 | 聚胺酯轮 | 聚胺酯轮 | |
| 轮子尺寸,前轮 | φ250x80 | φ250x80 | φ250x80 | |
| 轮子尺寸,后轮 | φ80x70 | φ80x70 | φ80x70 | |
| 附加轮(尺寸) | φ100x50 | φ100x50 | φ100x50 | |
| 轮,前后数量攸=驱动轮) | lx+2/4 | lx+2/4 | lx+2/4 | |
| 前轮轮距 | blO(mm) | 886 | 886 | 886 |
| 后轮轮距 | bll(mm) | 525 | 525 | 525 |
| 门架作业时高度 | hl4(mm) | 5090/5590/6090 | 5090/5590/6090 | 5090/5590/6090 |
| 起升高度 | hl5(mm) | 4500/5000/5500 | 4500/5000/5500 | 4500/5000/5500 |
| 降低时高度 | hl3(mm) | 90 | 90 | 90 |
| 总体长度 | /l(mm) | 2140 | 2140 | 2140 |
| 门架缩回时高度 | /2(mm) | 2090/2257/2424 | 2090/2257/2424 | 2090/2257/2424 |
| 车体宽度 | bl(mm) | 1025 | 1025 | 1025 |
| 货叉尺寸 | S/e/l(mm) | 60/170/1100 | 60/170/1100 | 60/170/1100 |
| 货叉外宽 | b5(mm) | 690 | 690 | 690 |
| 轴距中心离地间隙 | m2(mm) | 40 | 40 | 40 |
| 通道宽度,托盘1000X1200(1200^货叉放置) | Ast(mm) | 2464 | 2464 | 2464 |
| 通道宽度,托盘800X1200(120。沿货叉放置) | Ast(mm) | 2401 | 2401 | 2401 |
| 转弯半径 | Wa(mm) | 1600 | 1600 | 1600 |
| 行驶速度,满载/空载 | KM/h | 4/5.6 | 4/5.6 | 4/5.6 |
| 提升速度,满载/空载 | m/s | 0.08/0.1 | 0.08/0.1 | 0.08/0.1 |
| 下降速度,满载/空载 | m/s | 0.12/0.09 | 0.12/0.09 | 0.12/0.09 |
| 爬坡能力,满载/卸载 | % | 6/10 | 6/10 | 6/10 |
| 行车制动 | 电磁制动 | 电磁制动 | 电磁制动 | |
| 驱动电机功率 | KW | 1.5 | 1.5 | 1.5 |
| 提升电机功率 | KW | 2.2 | 2.2 | 2.2 |
| 电瓶24V | AH | 120/130 | 120/130 | 120/130/210/240 |
| 蓄电池重量 | kg | 268 | 268 | 268 |
| 蓄电池尺寸(长X宽X高) | mm | 650*260*480 | 650*260*480 | 650*260*480 |
| 驾驶员耳边噪音等级符合DIN12053 | dB(A) | <70 | <70 | <70 |
| 备注:特殊规格可以按照客户要求制作 | ||||